Ibaraki Farm House
180m2 renovation - Ibaraki, Tokyo
Will Galloway, Koen Klinkers, Yuka Takeuchi, Mongkoloudom Chhiv
Photographs: Toshiyuki Yano
The narrative around a Japanese house seldom extends far into the past. Preservation in Japan is generally a matter of maintaining culture rather than buildings and objects. In this case we were originally asked to design a new home to replace a post-war farmhouse set in a small rural community two hours north of Tokyo. After working through several designs we realized, along with the client, that outside of the city our options could be different. And so we set aside the designs for a new building and instead resolved to update the existing home.
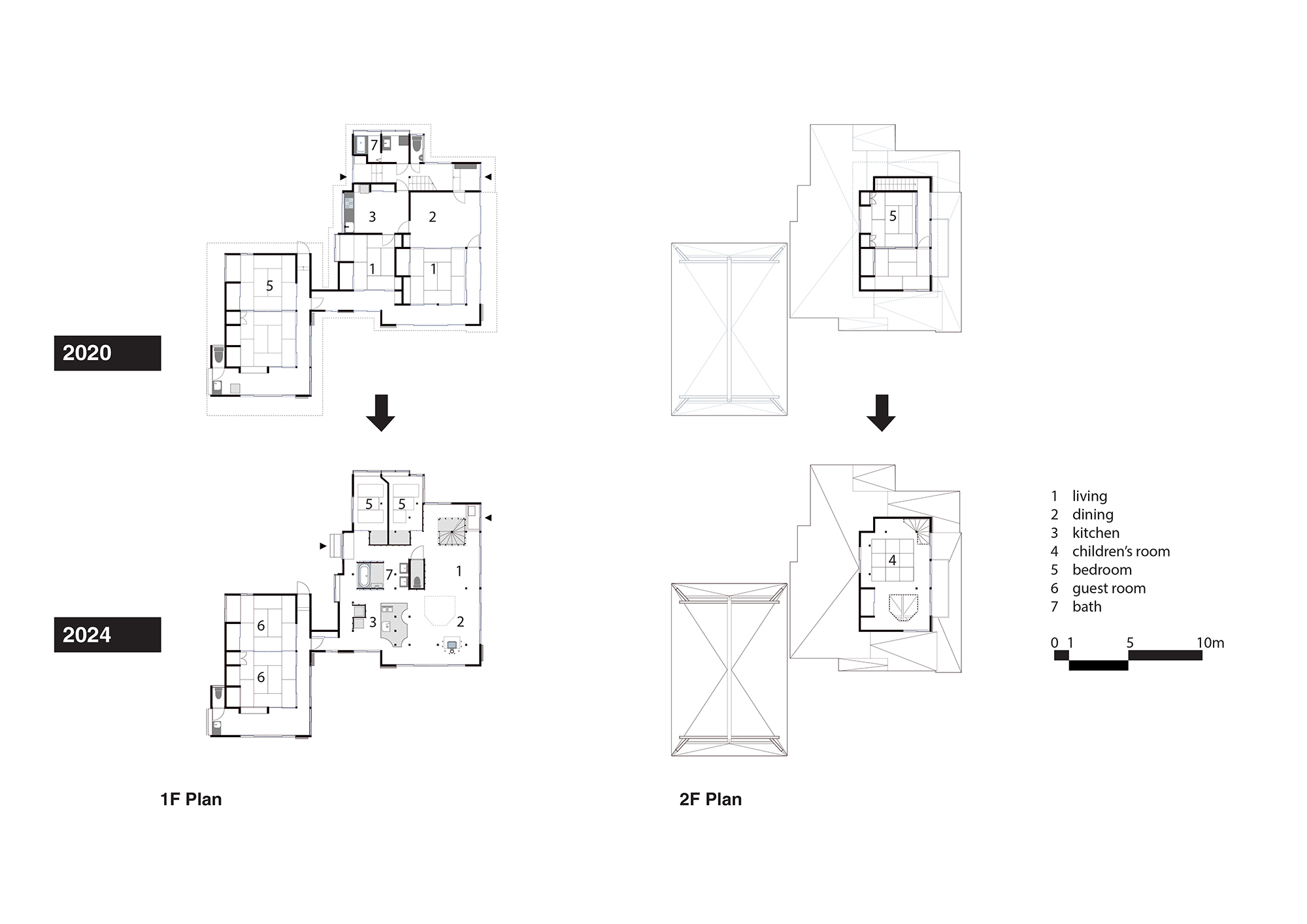
An update was needed. The way the home was used had become complicated over time, being a home for a septuagenarian couple who regularly shared their home with their daughter, son-in-law, and grandchildren when they visit for long stays from the city. Physically the home was also deteriorating. The post-war house was originally built quickly and efficiently with a mixture of traditional and ad-hoc techniques. However, like many homes in Japan from that time it was never properly insulated and showed its age after decades of well-lived use, including scores of storms, and earthquakes. In its early years, the timber frame structure allowed for an open flexible plan, with sliding doors and perimeter hallways connecting rooms together freely. However, the house became closed and ungainly as it modernized and as it was adapted to fit a changing way of life along with the rest of the country.
We reset the plan by stripping the interior to its timber frame and formed an opening between floors to bring in light and make the small second floor rooms part of daily life on the main level. The new plan is formed by placement of simple wood boxes to contain a bath, washroom, new bedrooms, and a minimal stair. Where columns did not match the new organization we modified the design to privilege the old instead of the new. The large kitchen counter is shaped by the way it accepts existing columns or dodges around them. Tatami floors in the bedrooms similarly sidestep the structure, creating patterns that would not happen traditionally, but leaving space to place a futon for sleep. Other parts of the home are left as they were or re-used to form convenient screens and dividers.
The revised version of the house is as open as it was when freshly built, and gently hosts the spaces needed for a multi-generational family. It is easily ready for decades more use. In Japan, where homes are normally destined for a life of twenty or thirty years, that is a radical outcome.

















